Проект частной квартиры ул. Гадиева-Коцоева

Тип недвижимости: Проект частной квартиры Этажей: 2 (включая мансарду)

Где находится: г. Владикавказ, ул. Гадиева / Коцоева

Стиль: современная классика с элементами минимализма

Особенности проекта: Проект двухуровневой квартиры в самом центре Владикавказа — это сочетание элегантной современности, нестандартных планировочных решений.

Вся квартира выдержана в тёплой серо-бежевой гамме. Использованы натуральные и благородные материалы: инженерная доска, натуральный шпон, кровать из кожи, декоративный камень. Особое внимание уделено тактильности и визуальному балансу — здесь мягкое дерево сочетается с холодным серым камнем, грубый металл уравновешивается золотыми аксессуарами.

Одним из ярких акцентов проекта стала мастер-спальня с открытым примыканием к ванной зоне, что добавляет пространству ощущение спа и уюта. В квартире установлены алюминиевые плинтусы без уголков и заглушек, что подчёркивает лаконичность архитектурных линий.

Проект продуман до деталей:

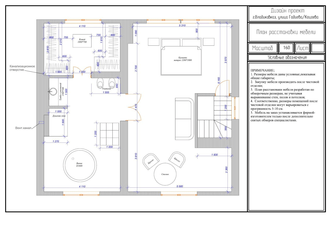
  • грамотная расстановка мебели,
  • нестандартные формы потолков,
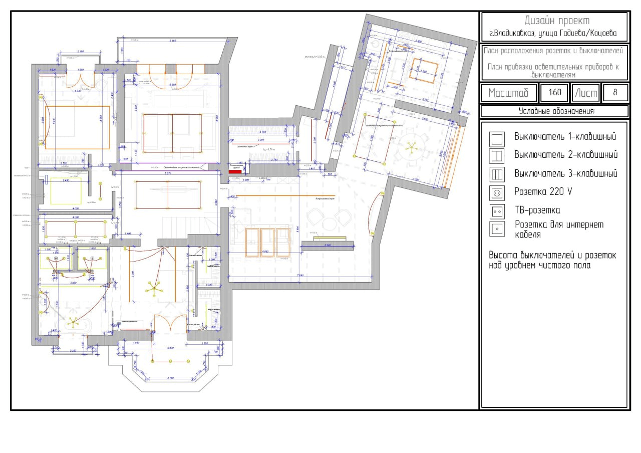
  • большое количество сценарного освещения,
  • множество источников вентиляции.

Цветовая гамма: молочные и теплые серые оттенки, дерево, пастельный розовый как акцент