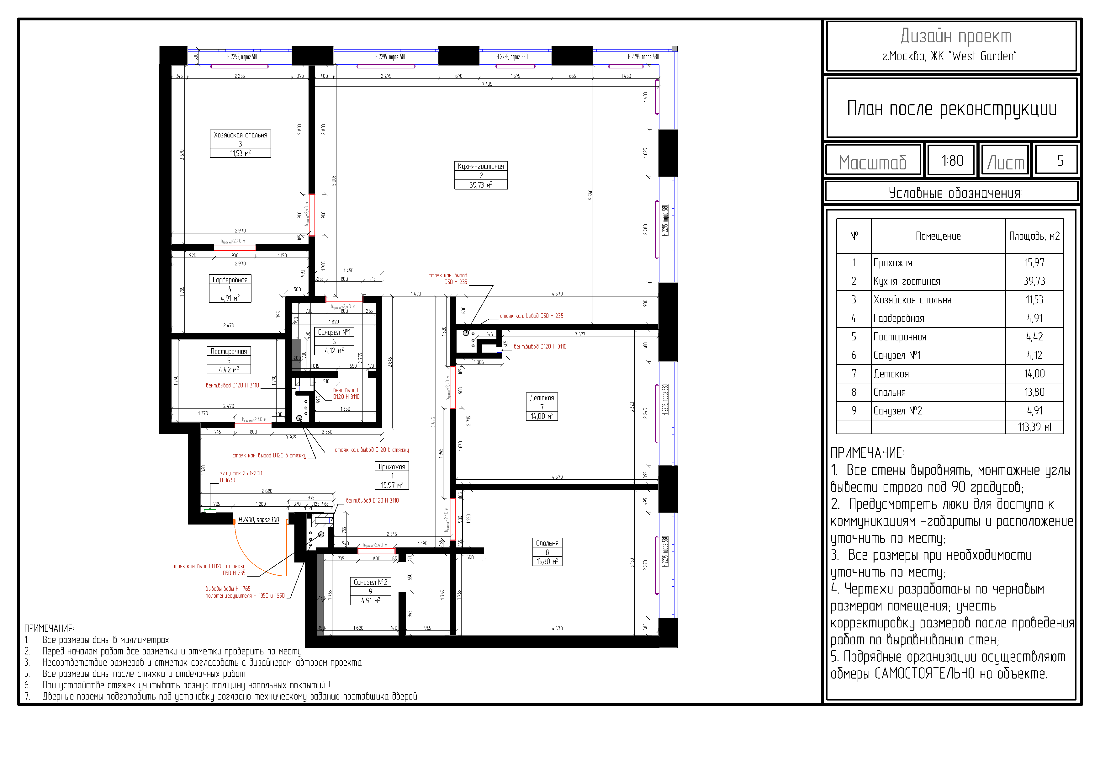
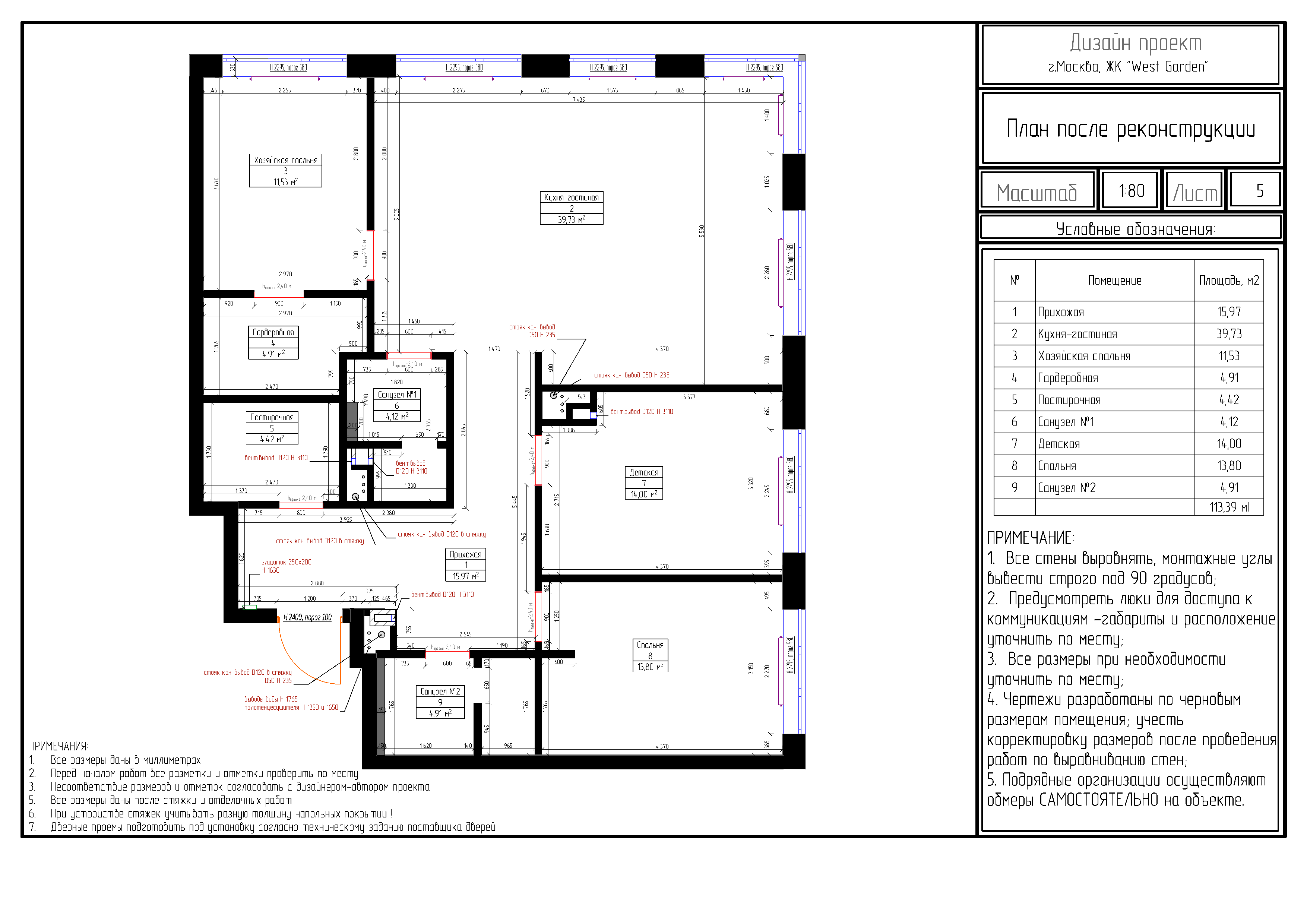
ЖК West Garden, 115,7 м²

Тип недвижимости: трехкомнатная квартира с изолированной кухней

Где находится: г. Москва, ЖК West Garden

Стиль: современная классика с элементами минимализма

Основная идея проекта: создать элегантное, светлое и уютное пространство, где классические элементы плавно сочетаются с современными решениями. Пространство оформлено в теплых натуральных оттенках, а плавные линии мебели и тактильные материалы создают ощущение уюта и легкости.

Особенности проекта:

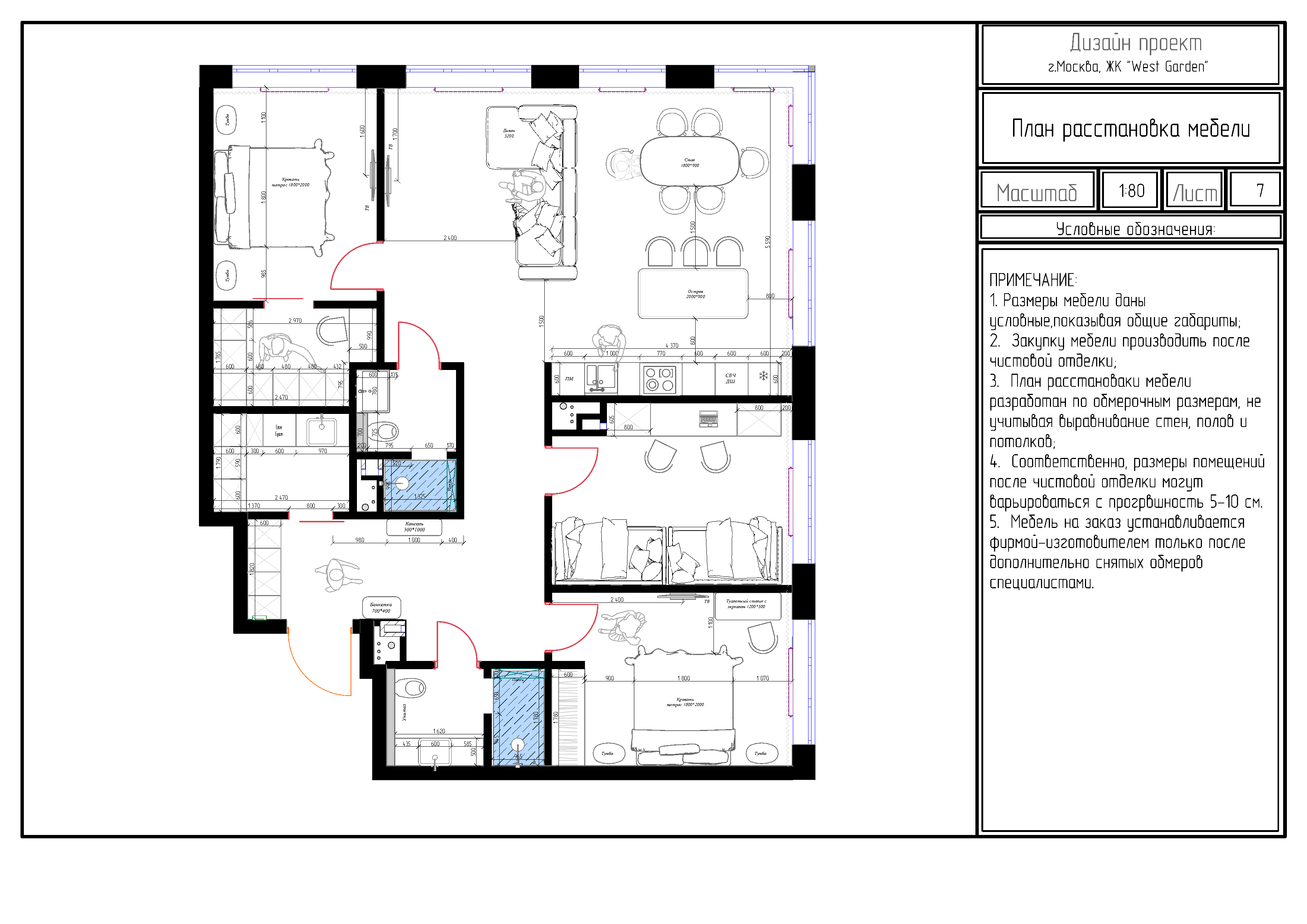
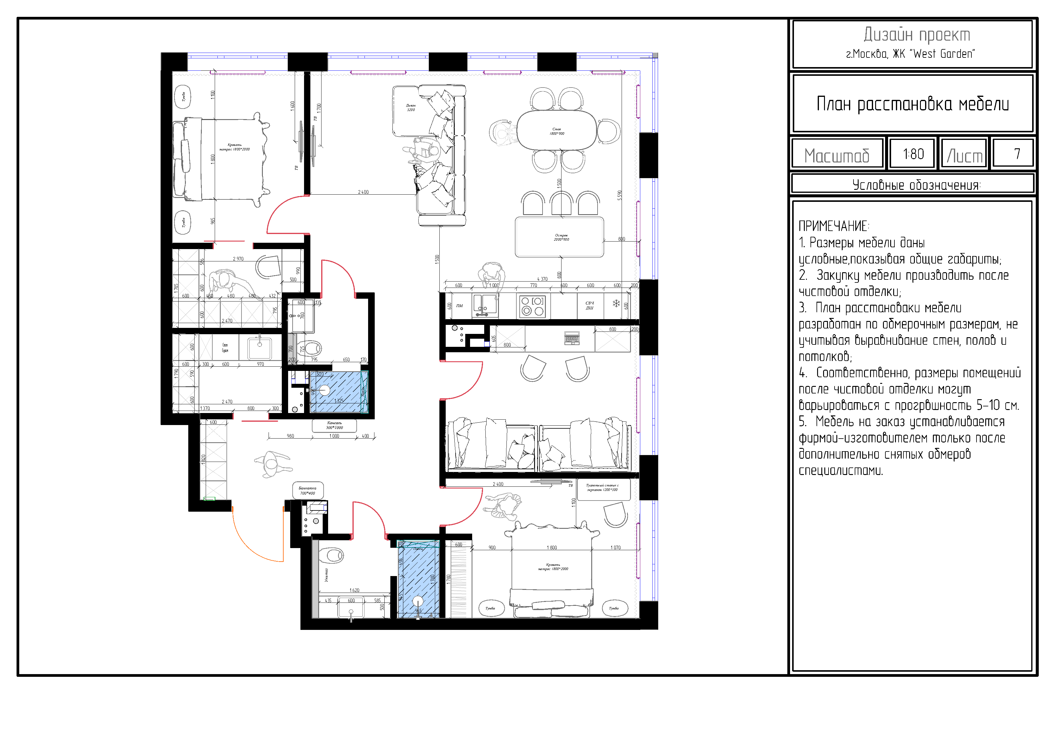
  • Просторная кухня-гостиная с объединенной зоной отдыха и обеденной группой
  • Барная стойка с мягкими барными стульями акцентного цвета
  • Натуральные текстуры: дерево, камень, текстиль в пастельных оттенках
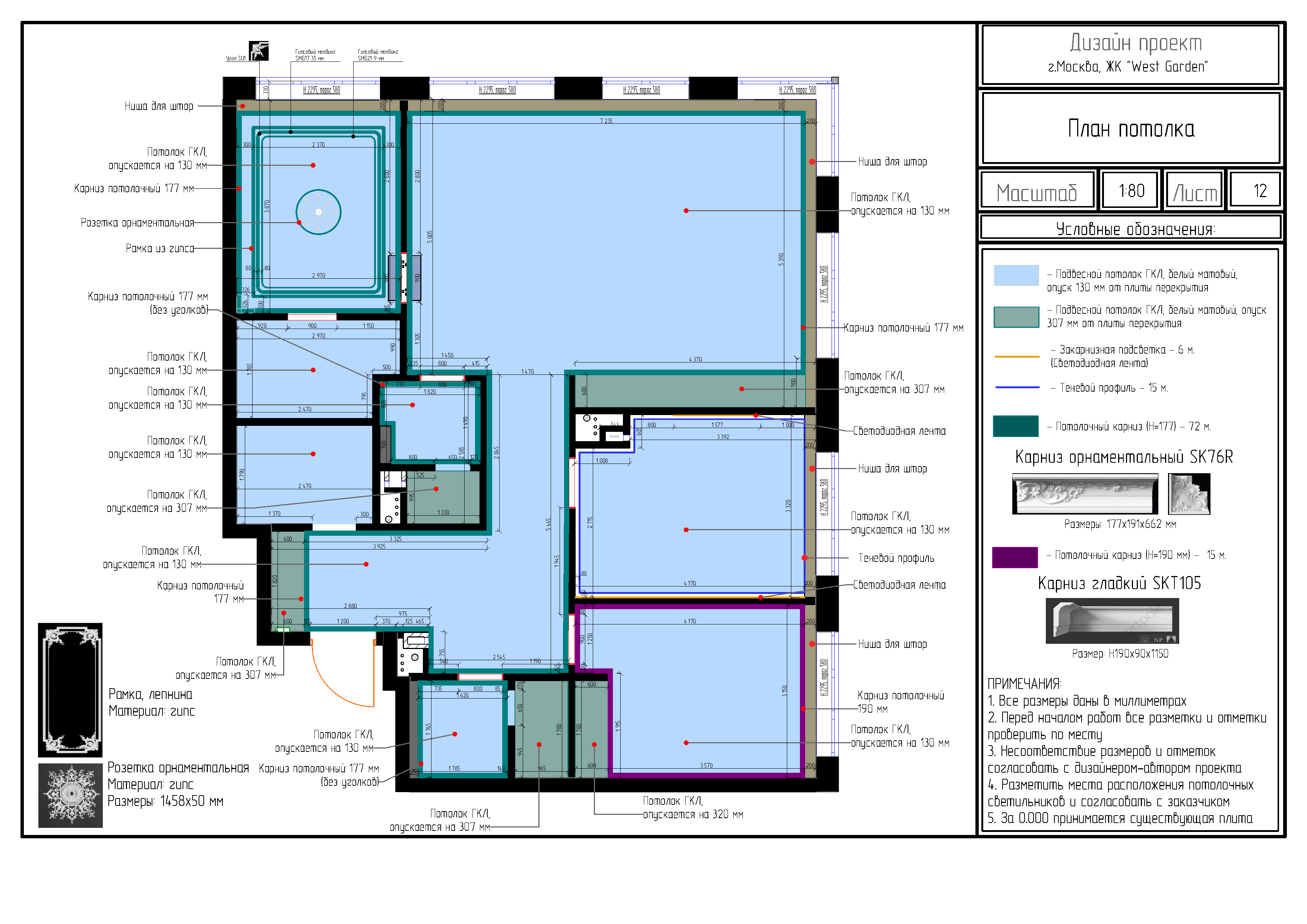
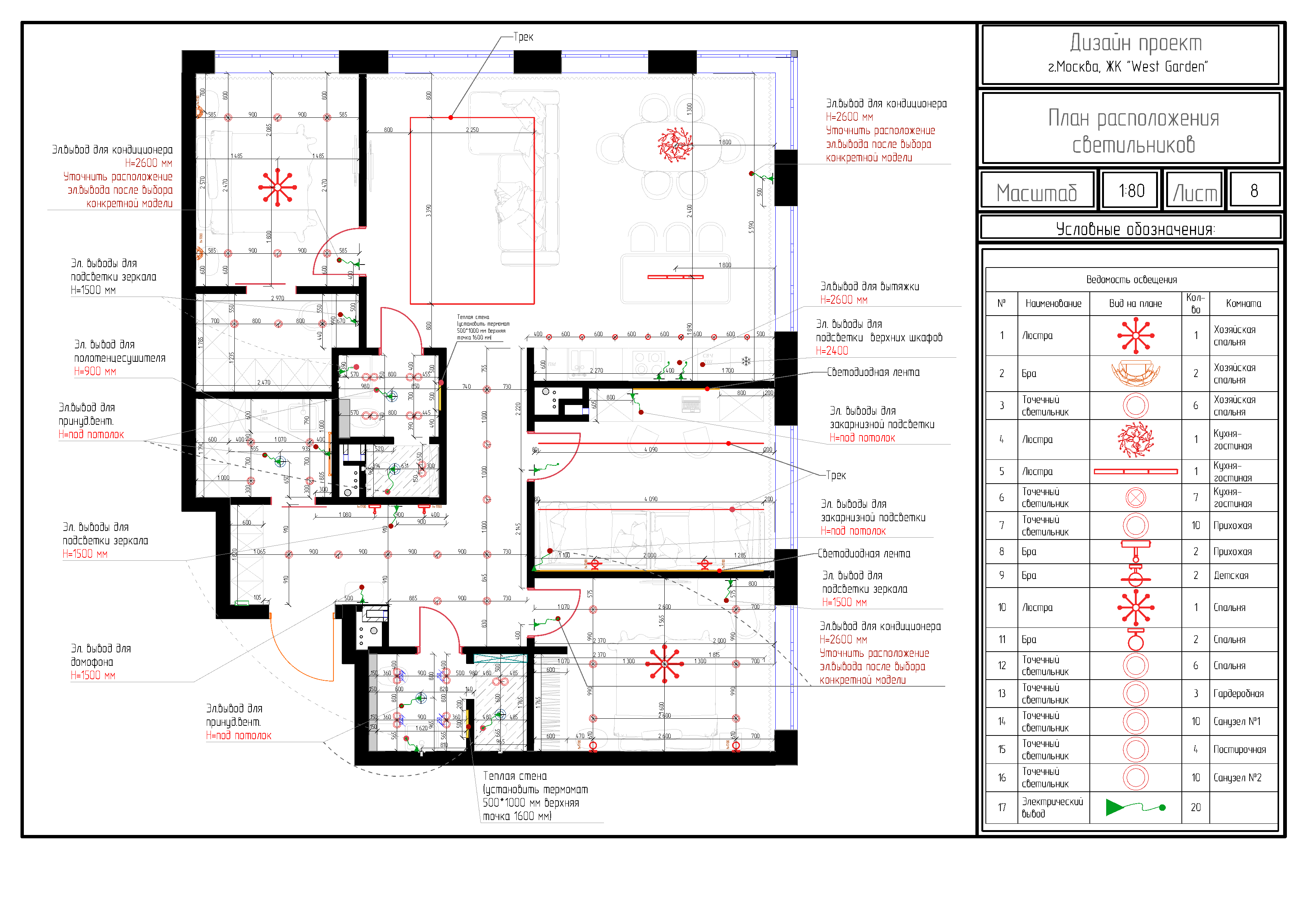
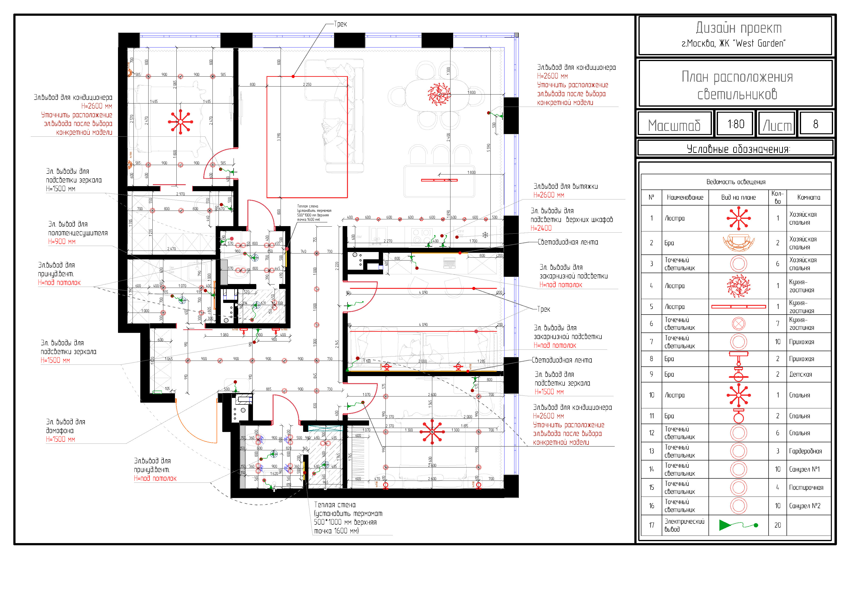
  • Зонирование освещения: встроенные споты, подвесные светильники и декоративные бра
  • Элементы классической лепнины, гармонично вписанные в минималистичный интерьер

Цветовая гамма: молочные и теплые серые оттенки, дерево, пастельный розовый как акцент